Bits Drafting and Design
Work
Social Links
About
Conceptual Design
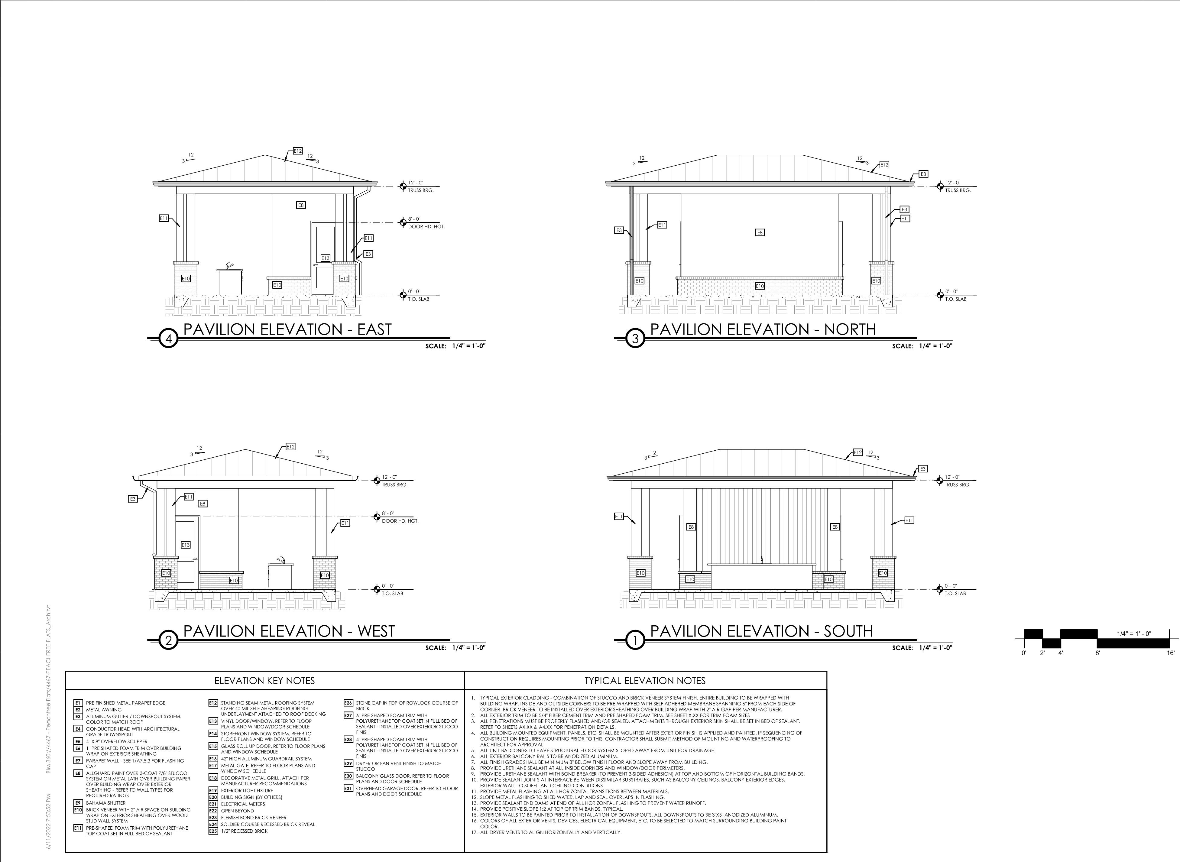
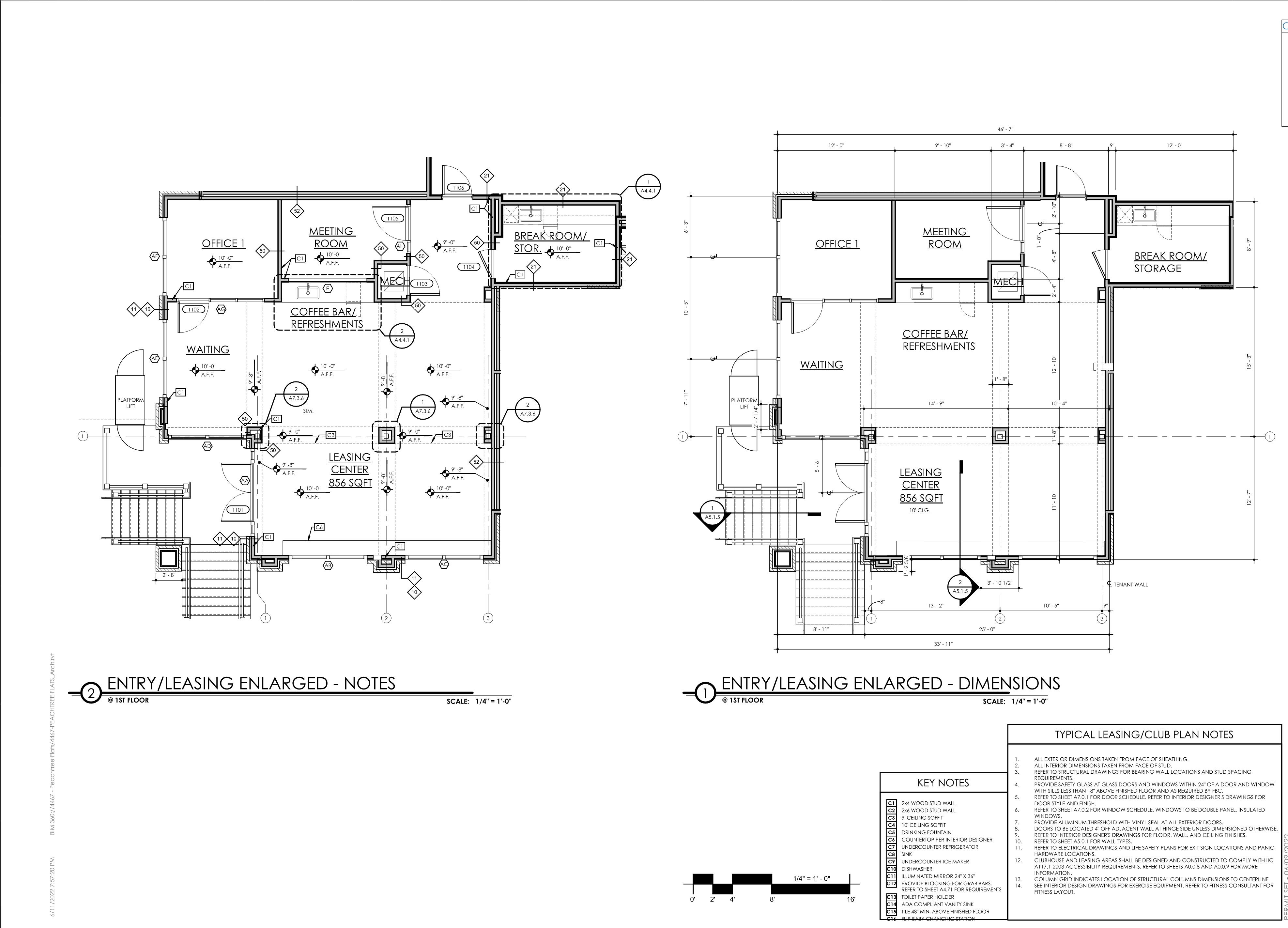
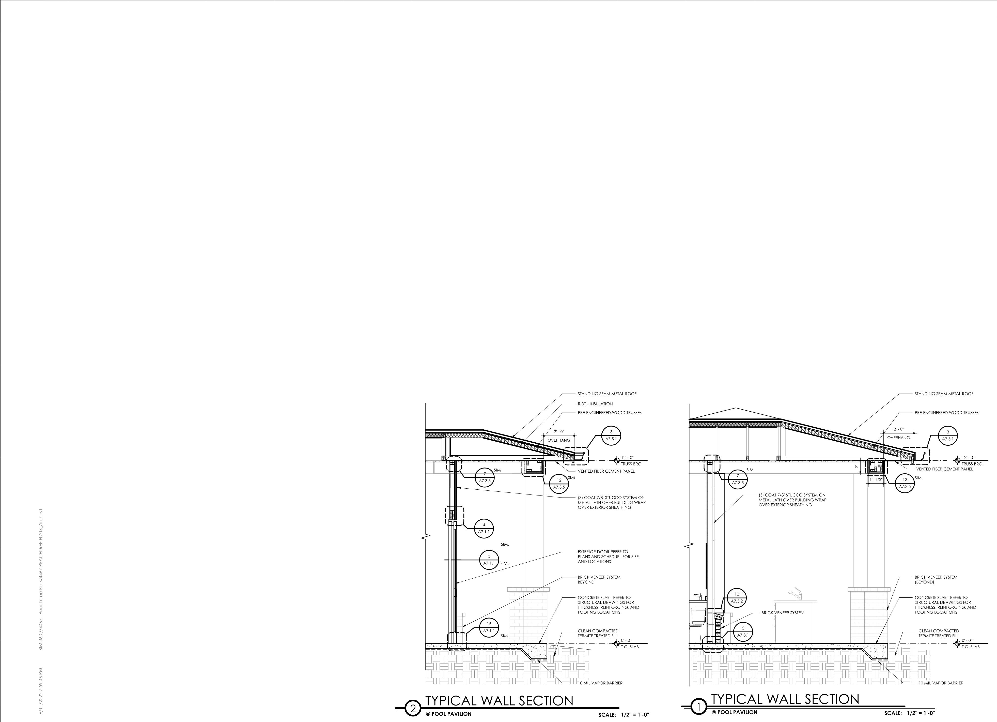
Site Planning
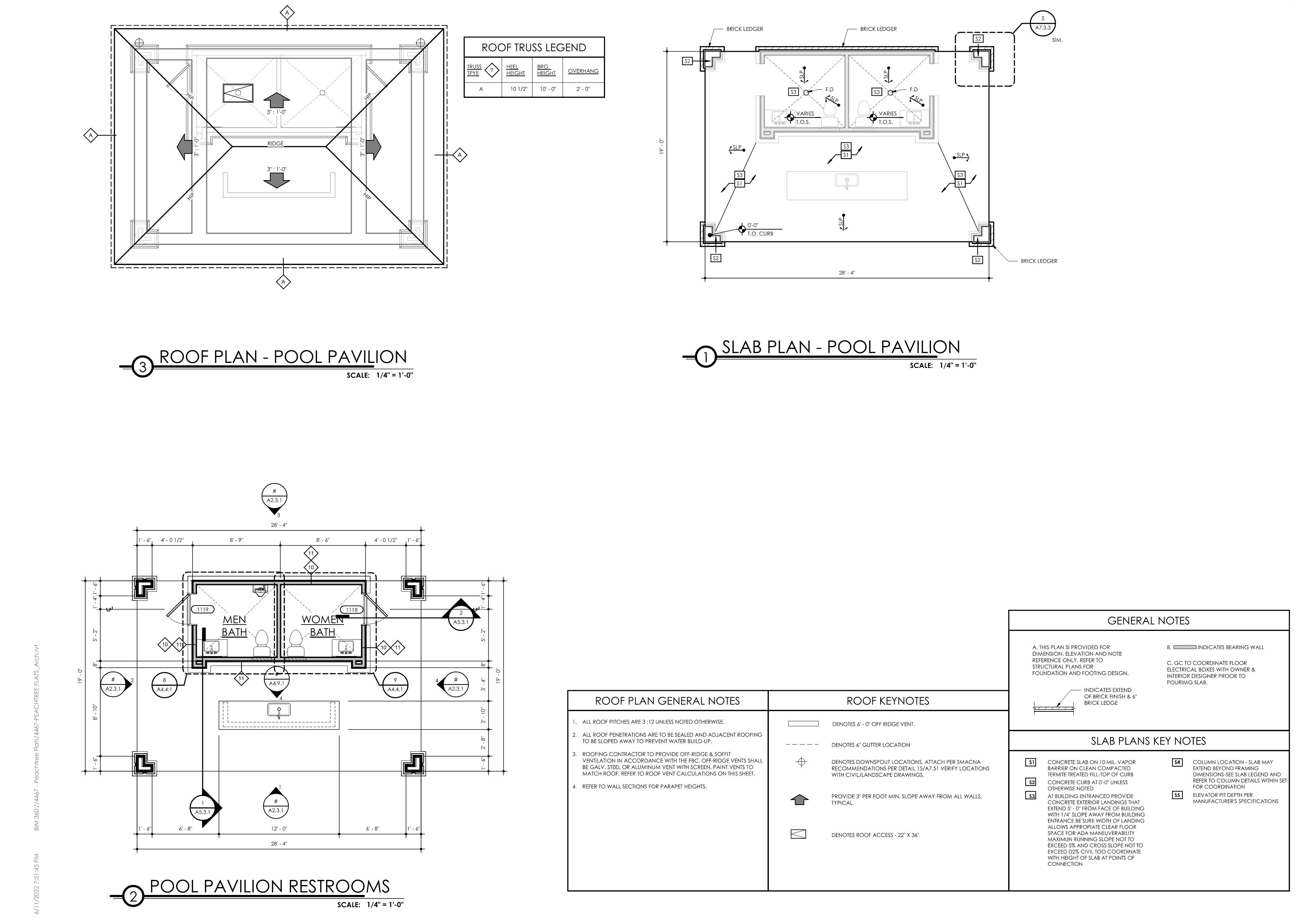
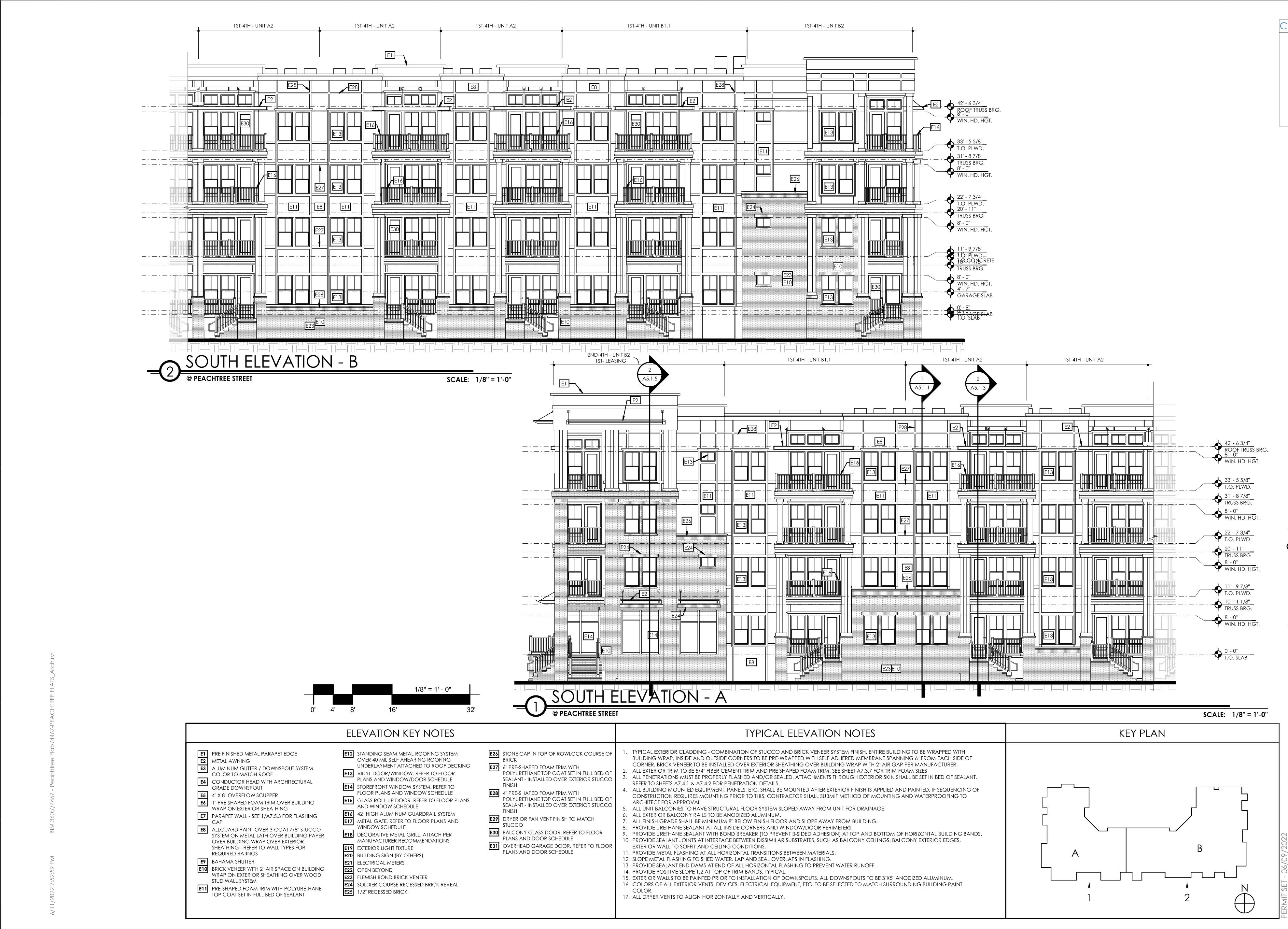
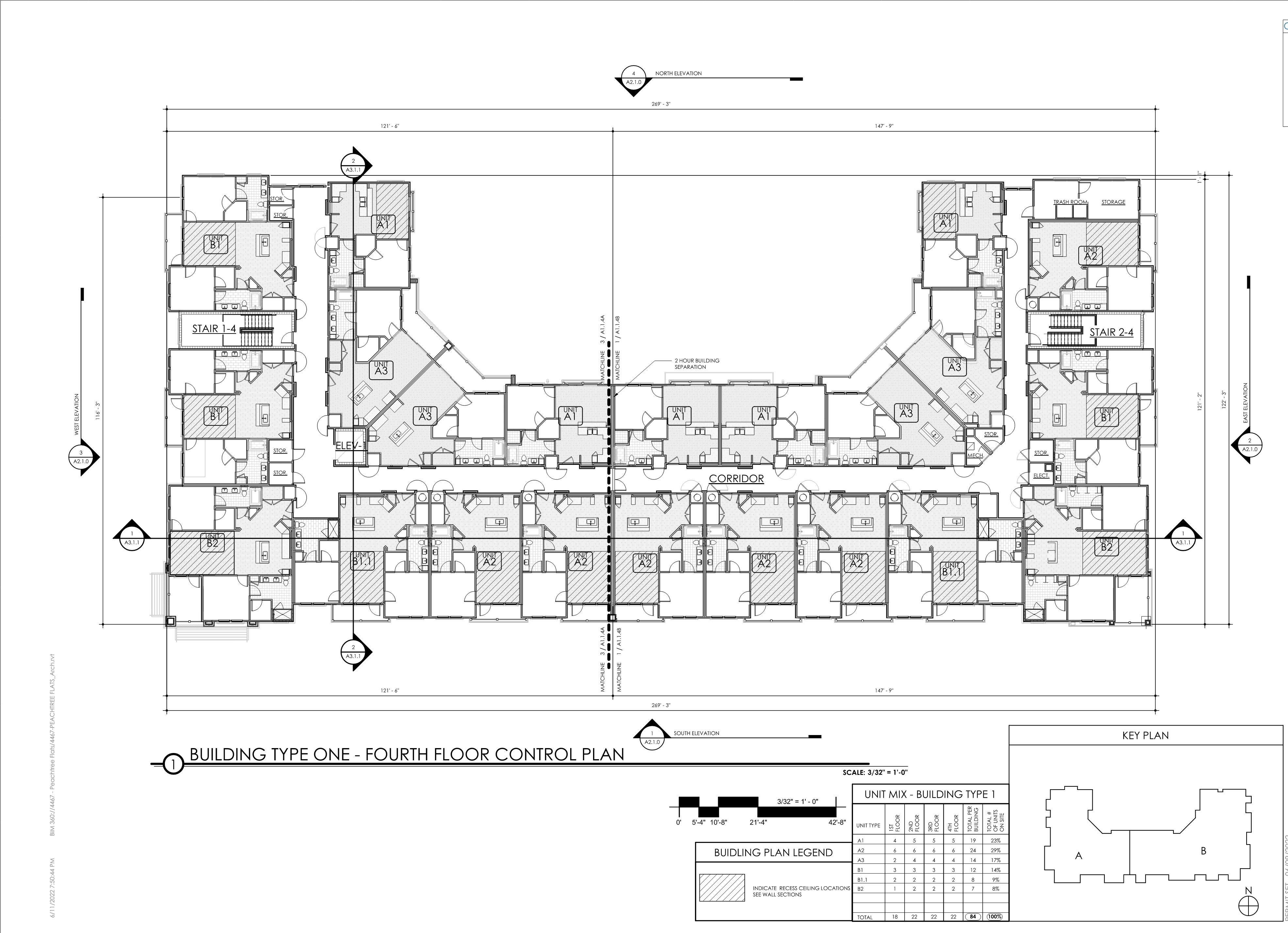
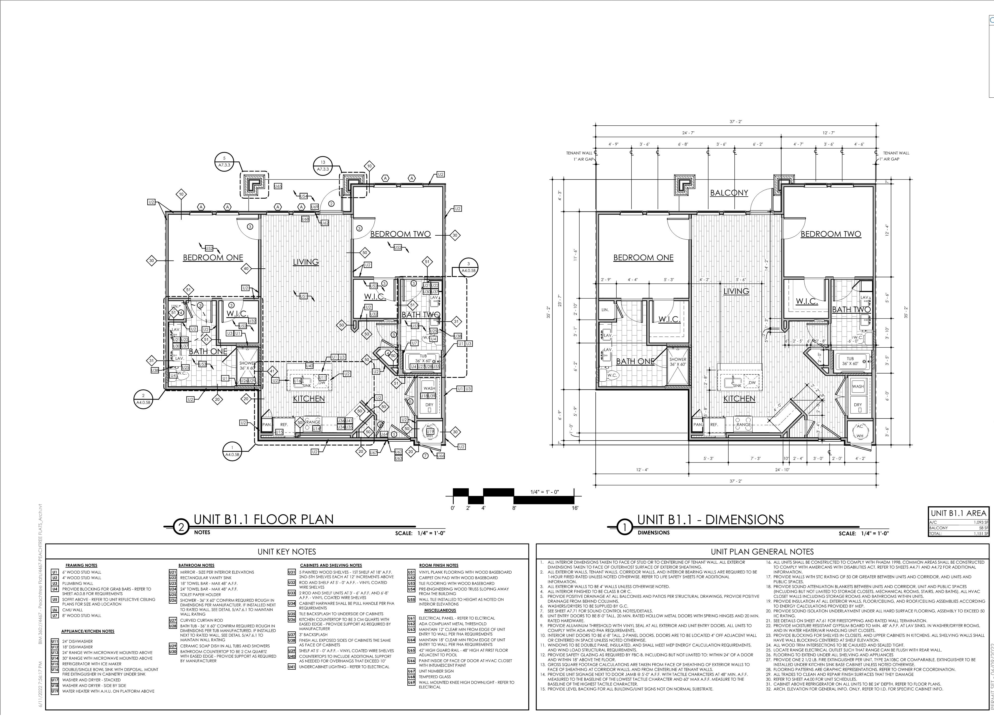
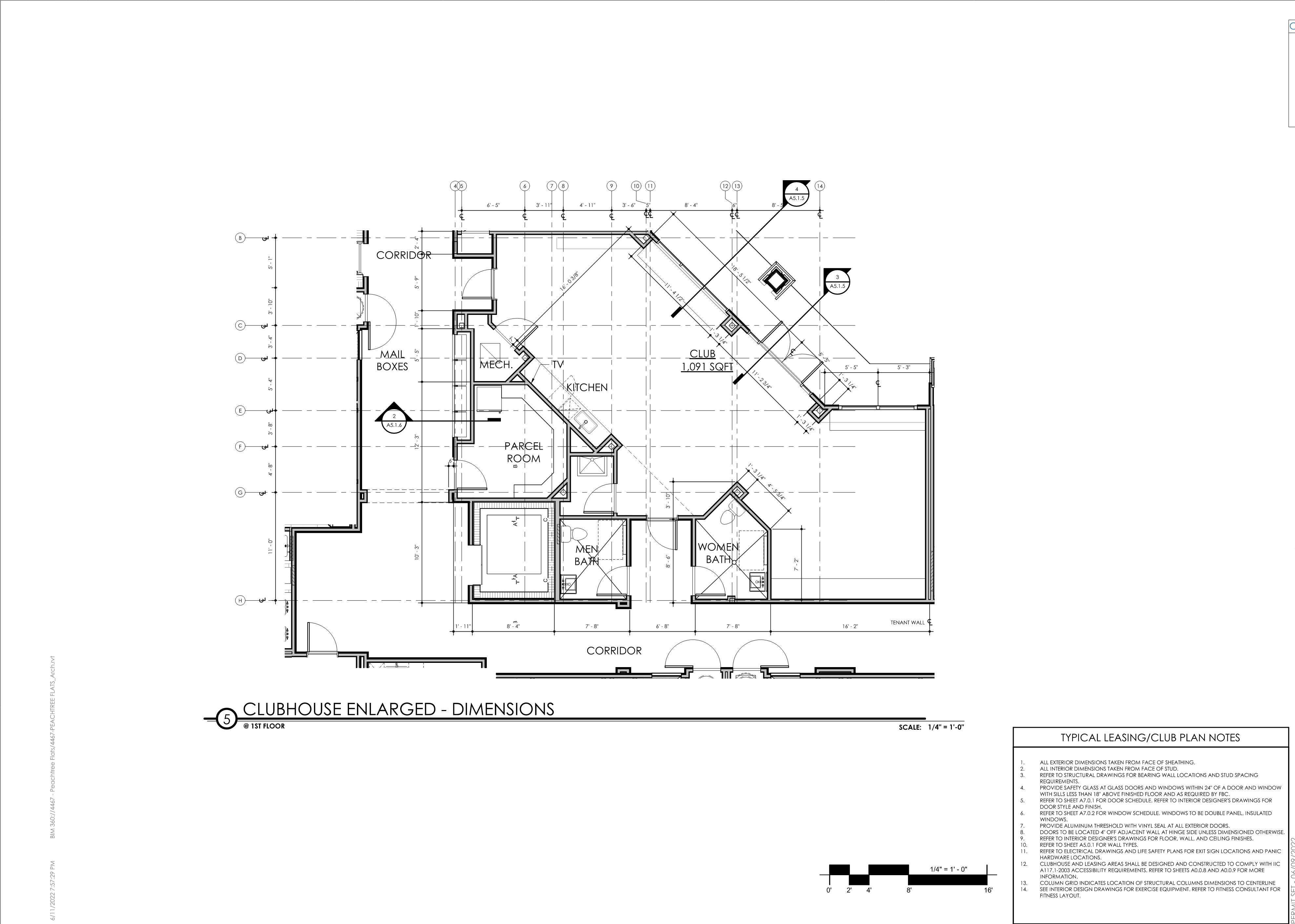
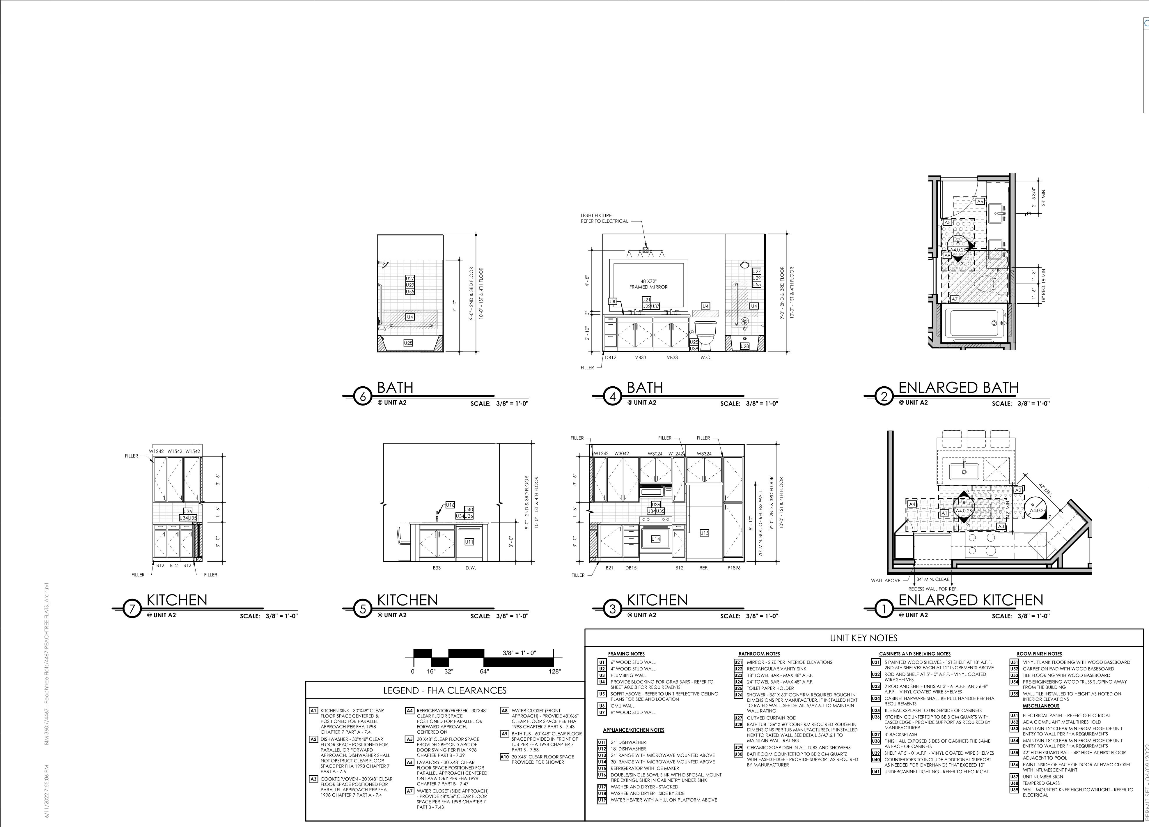
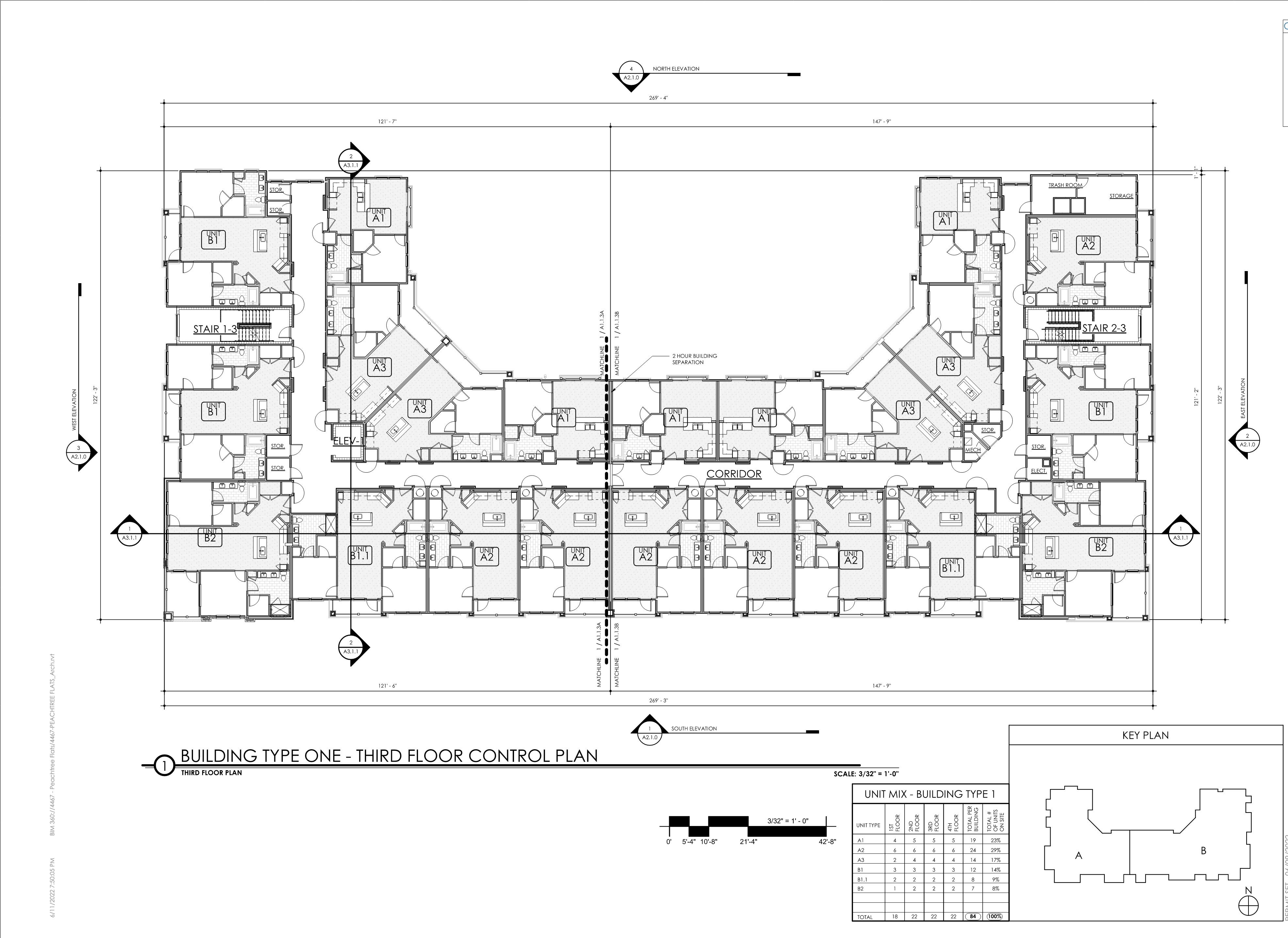
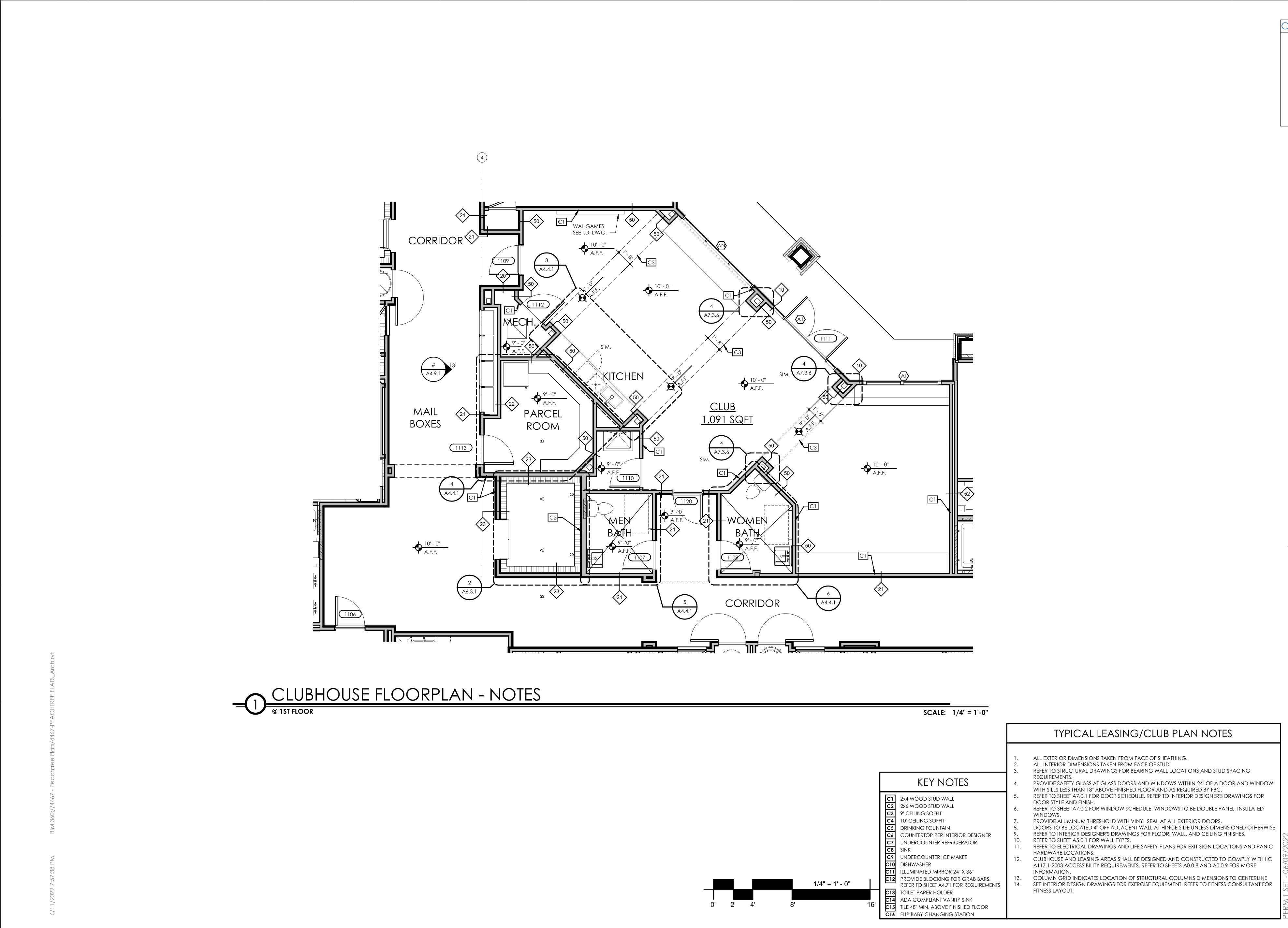
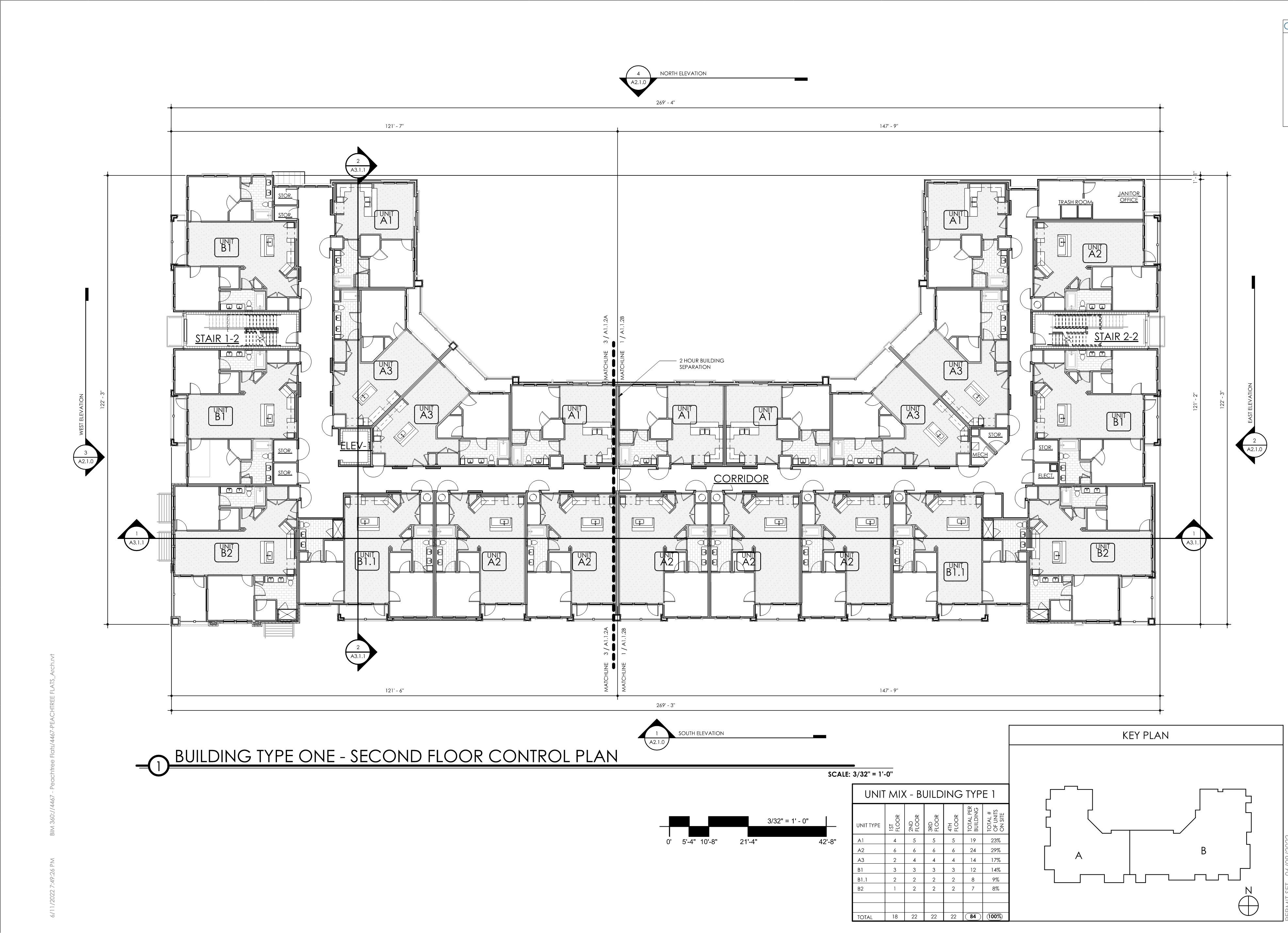
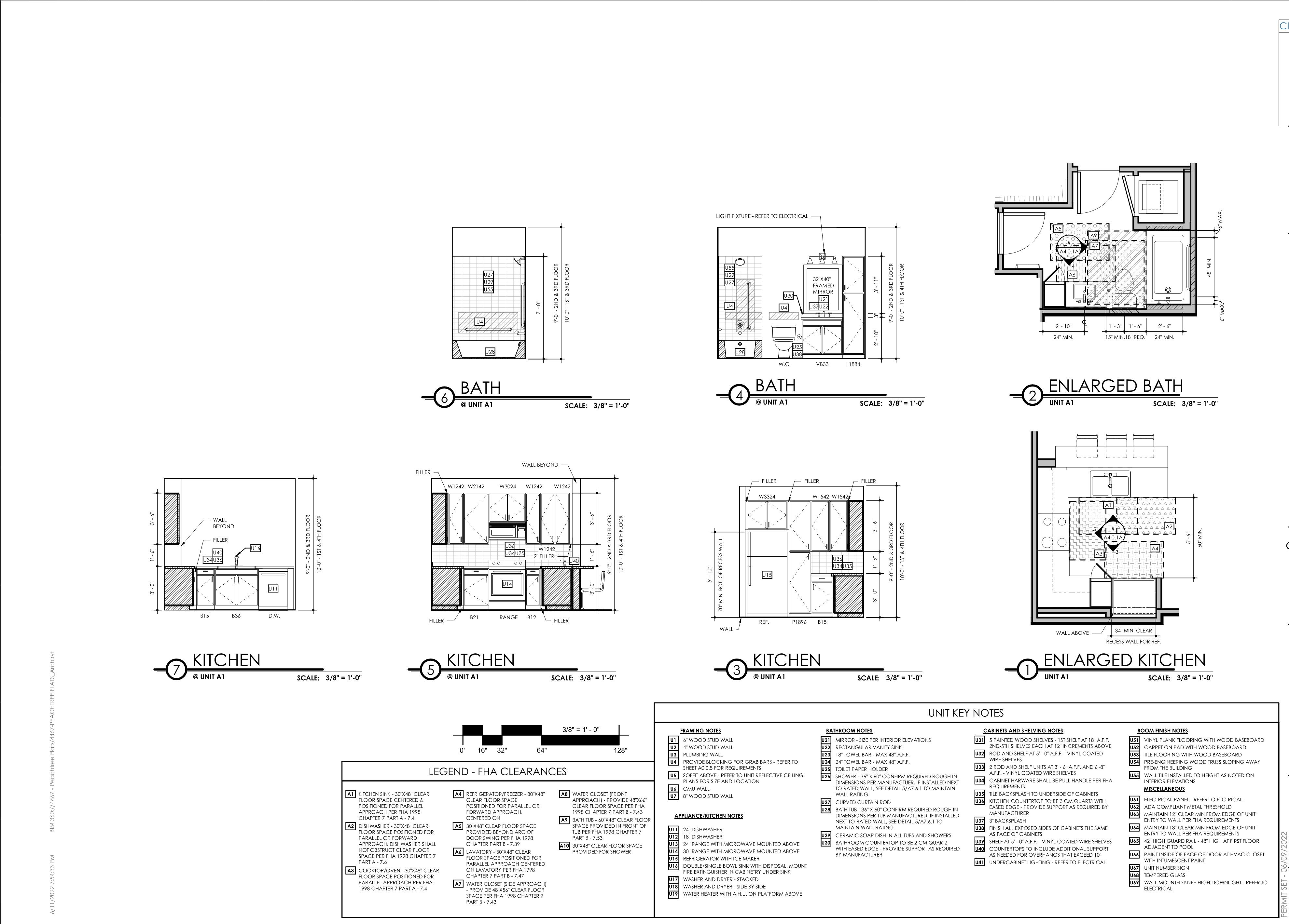
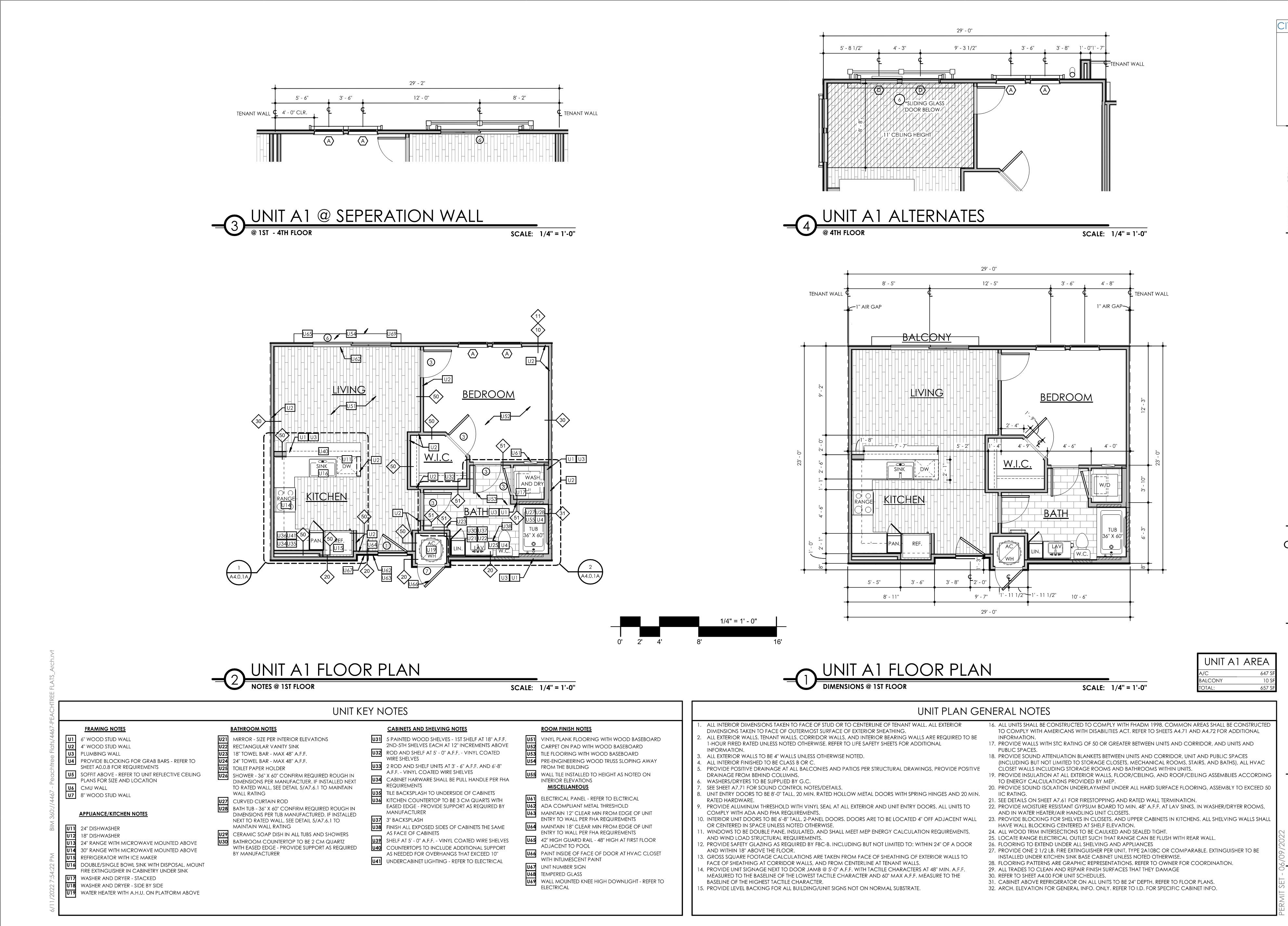
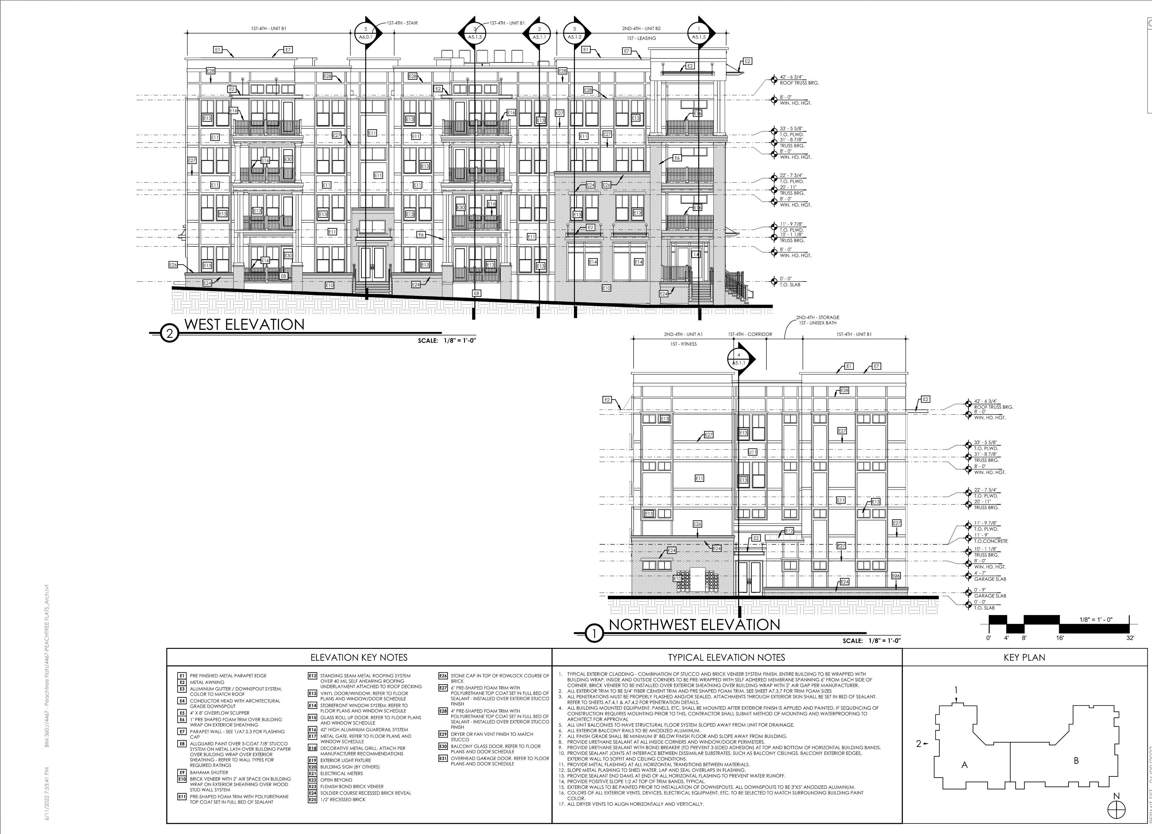
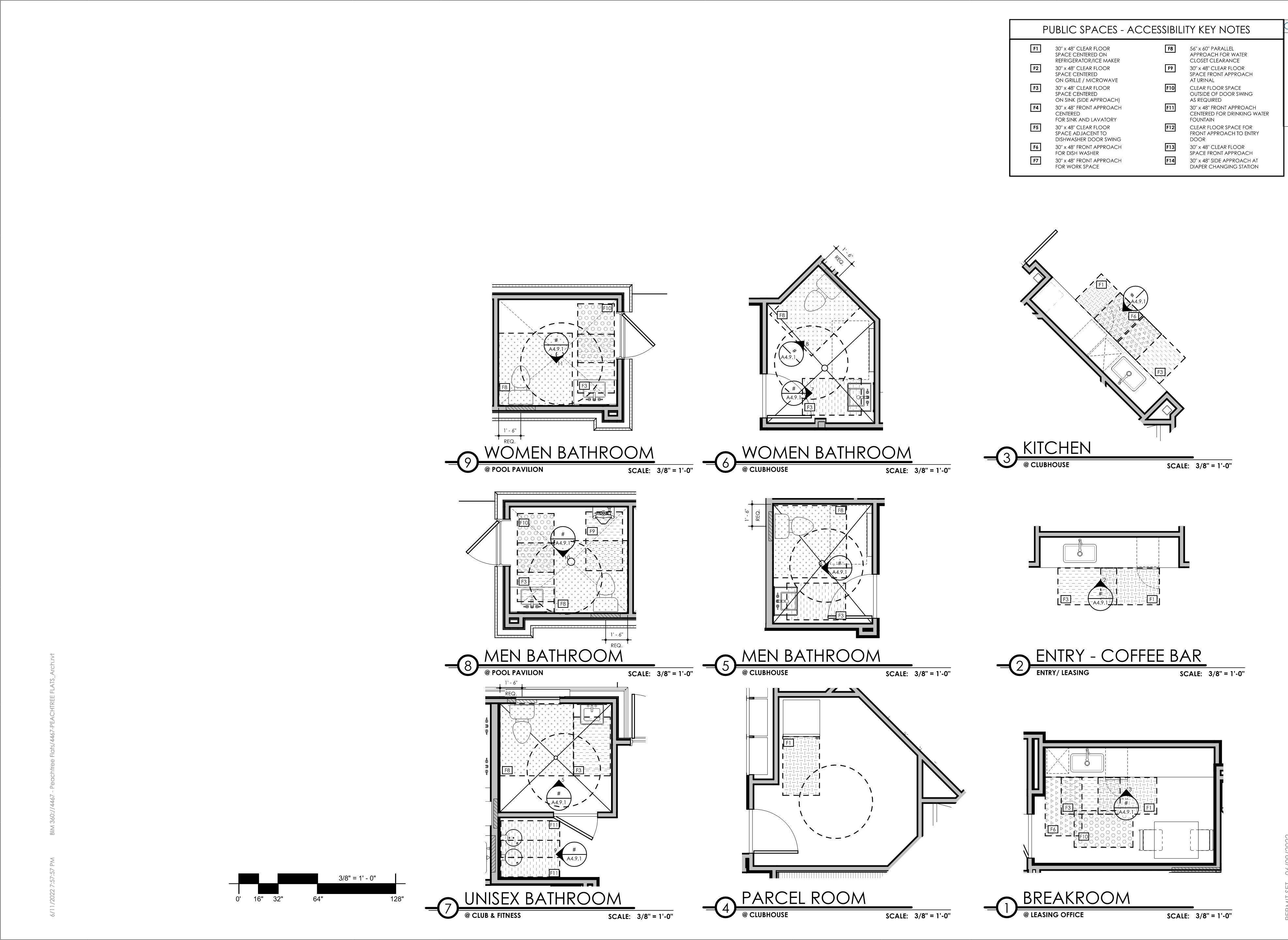
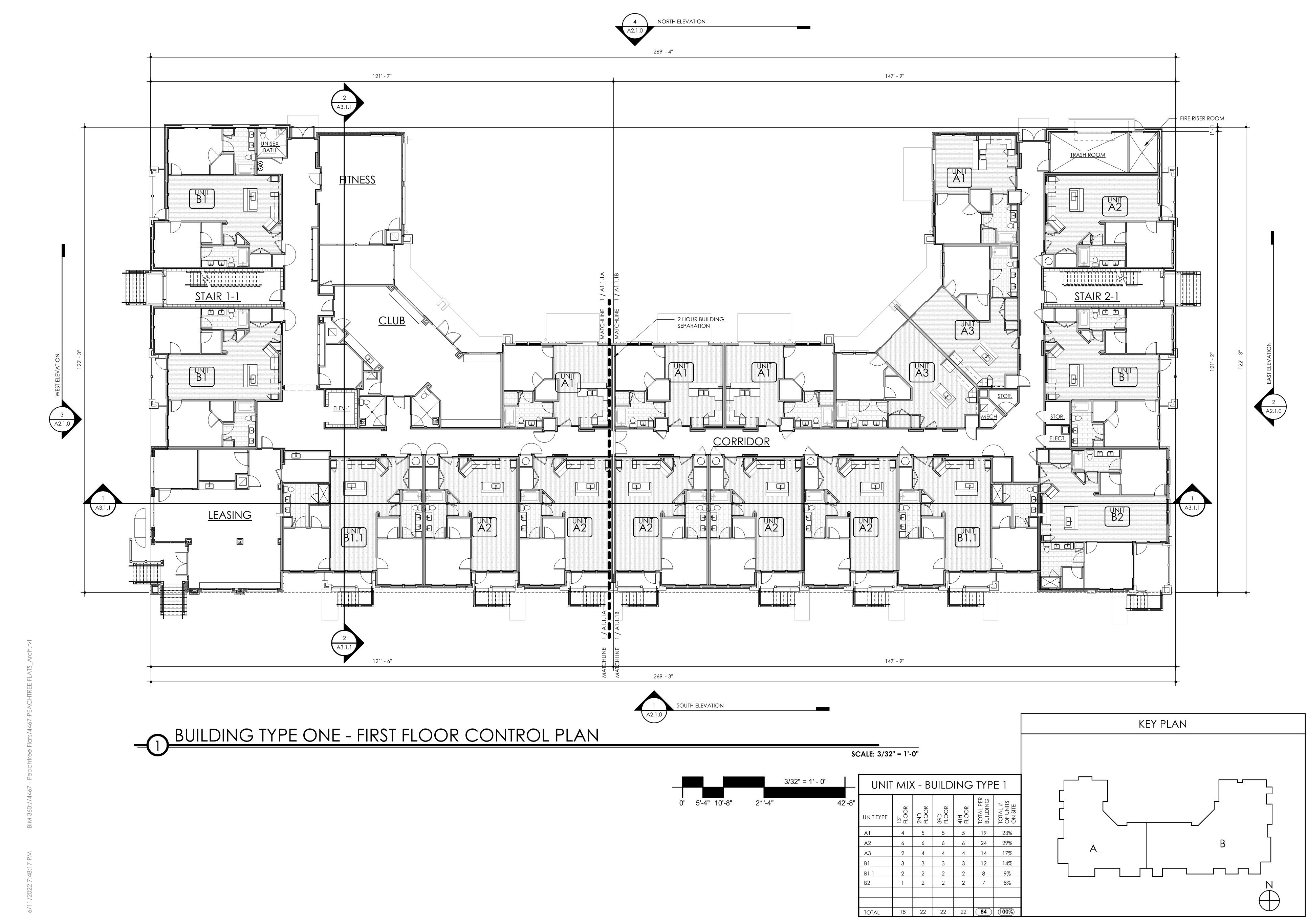
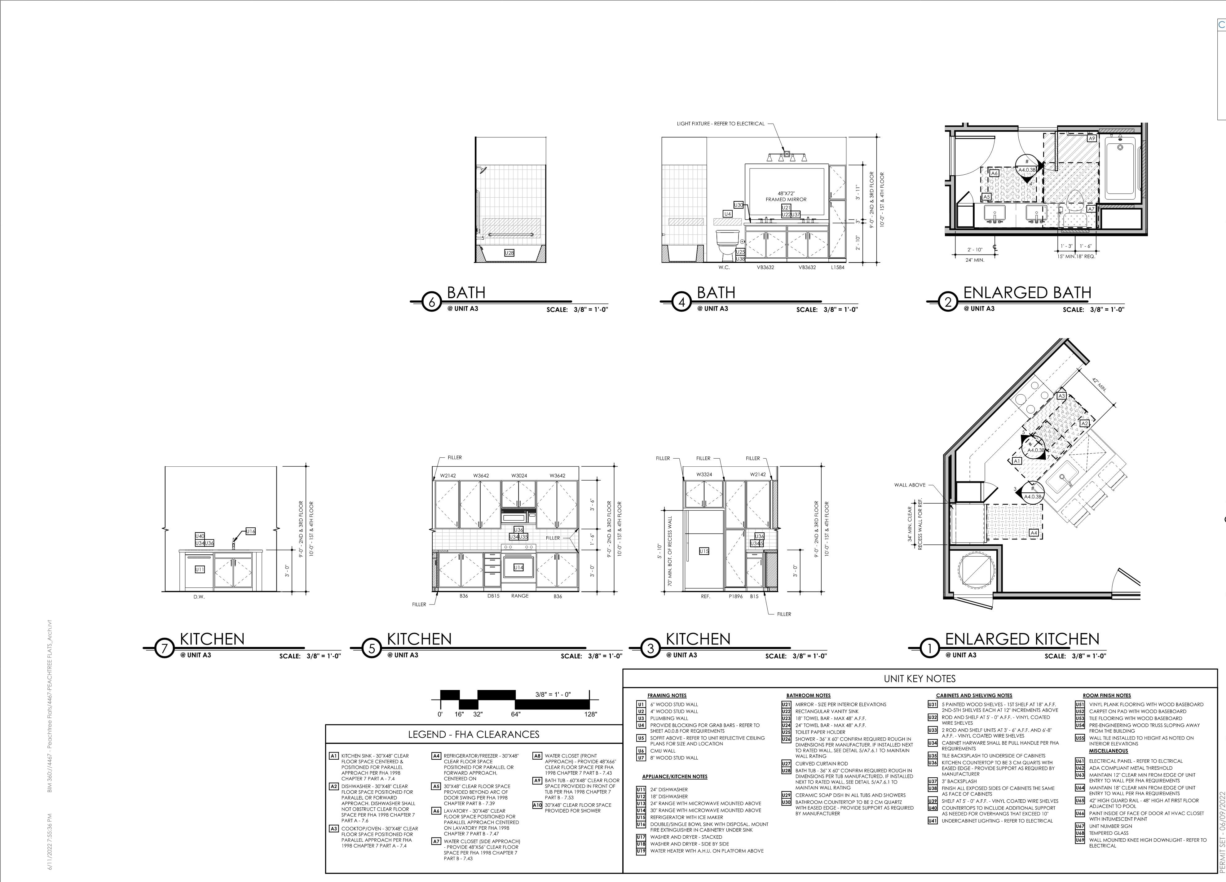
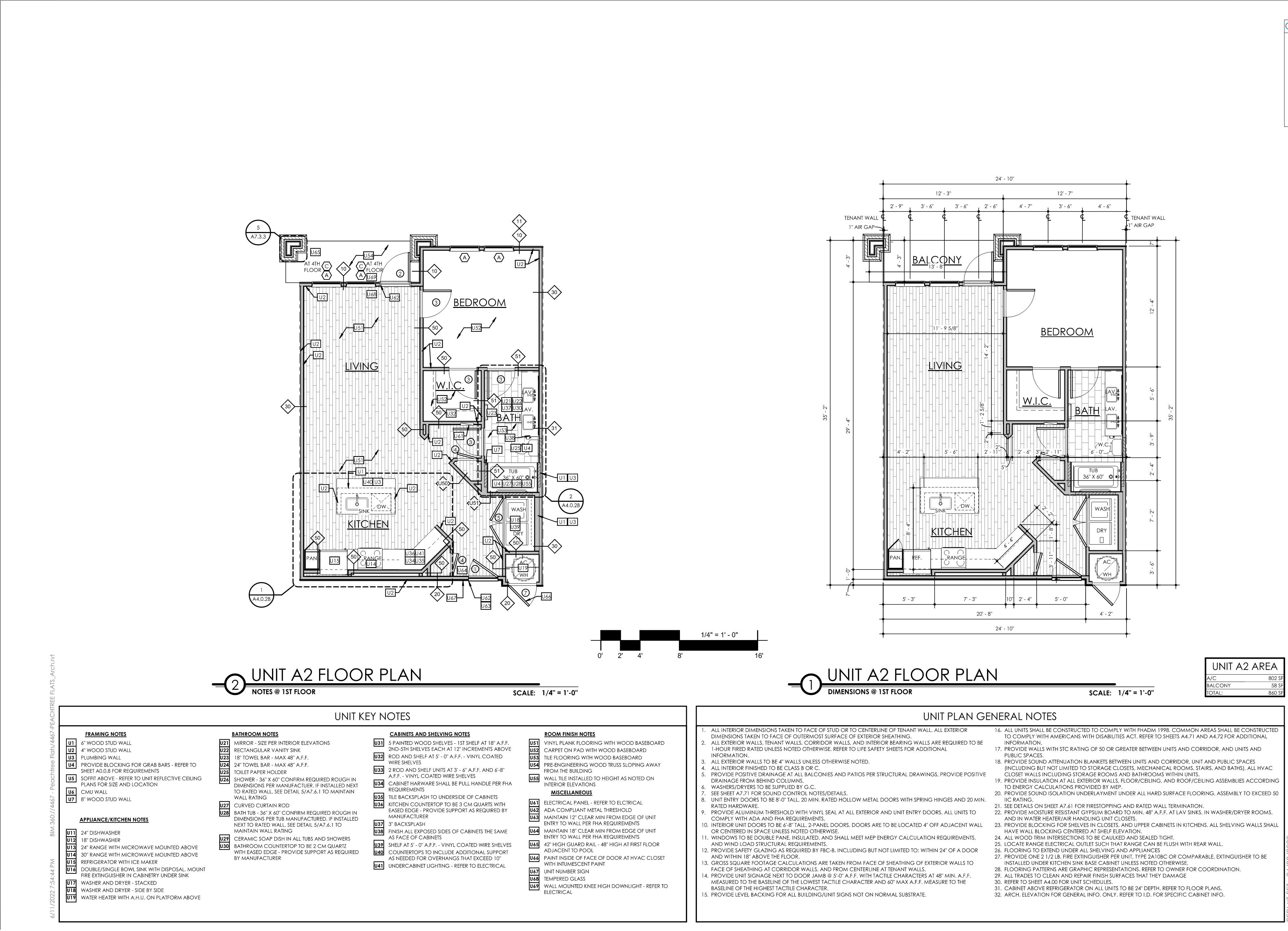
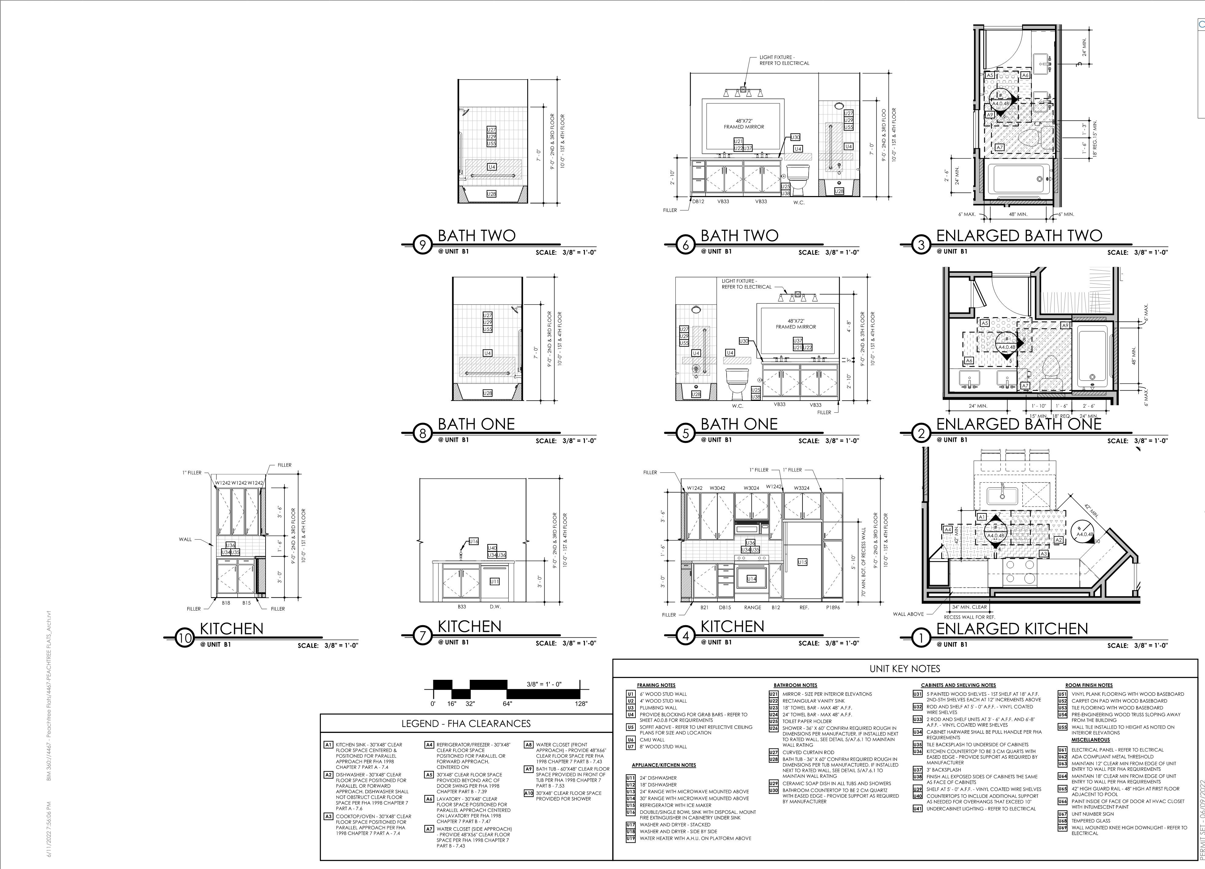
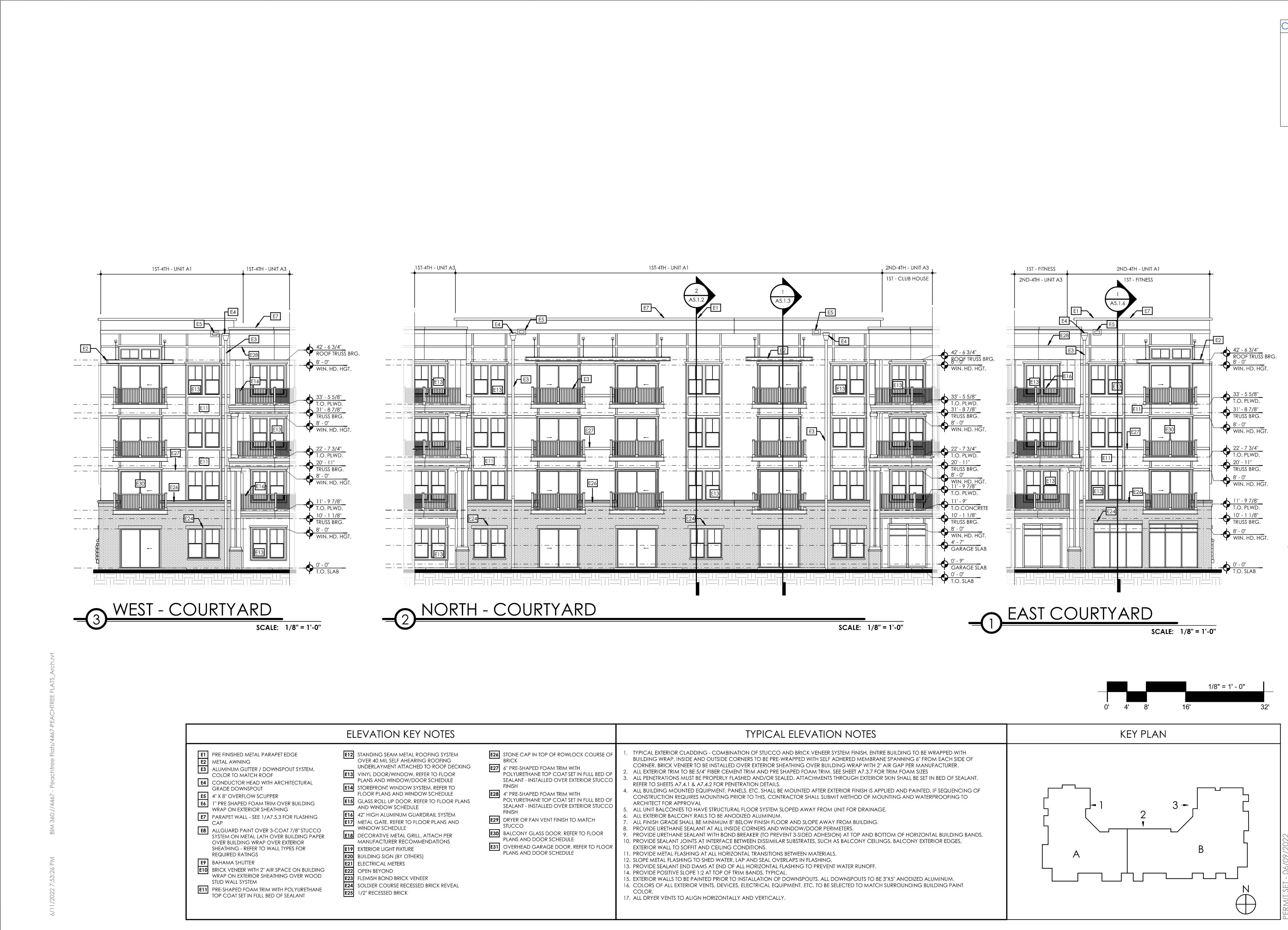
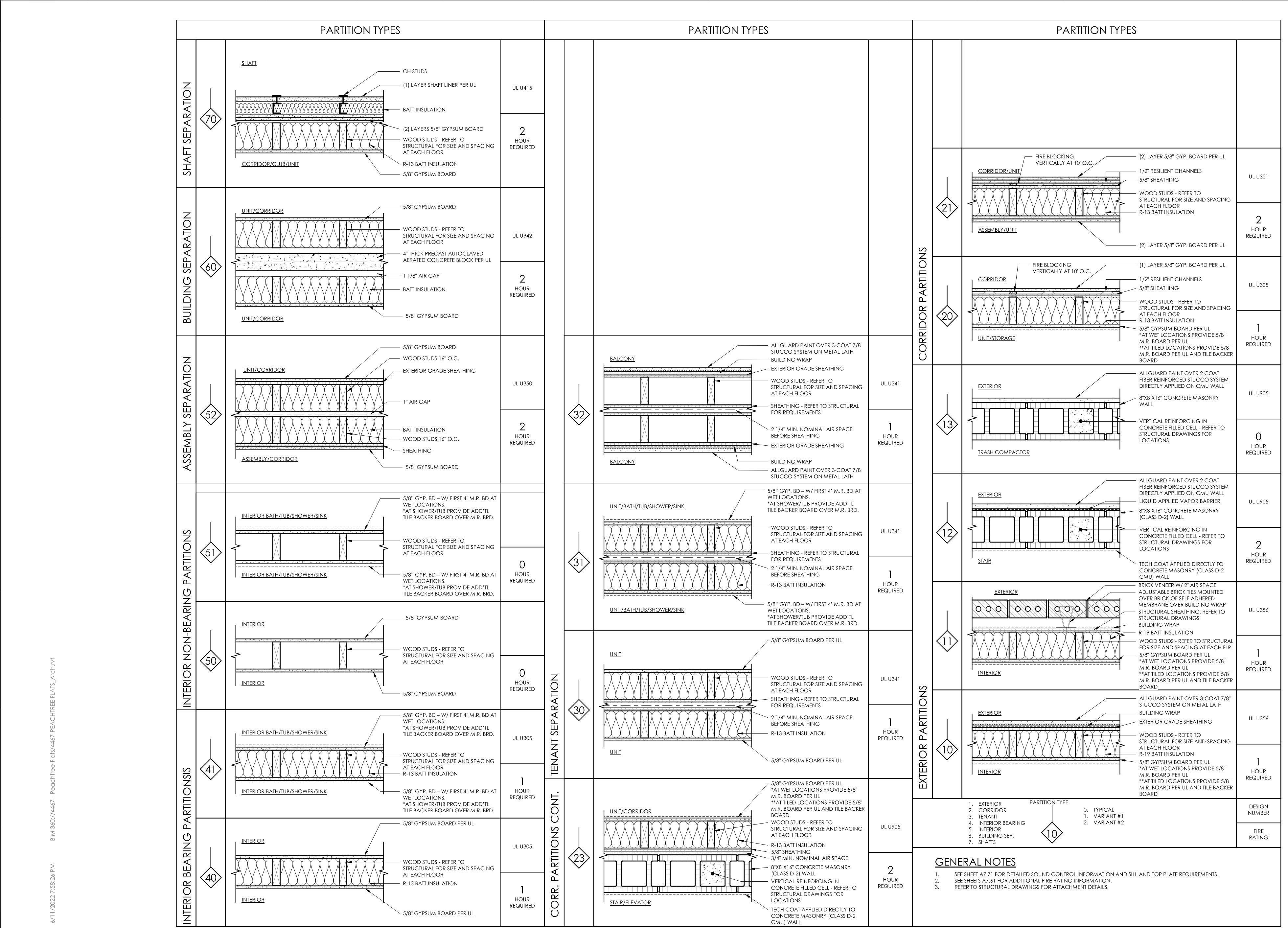
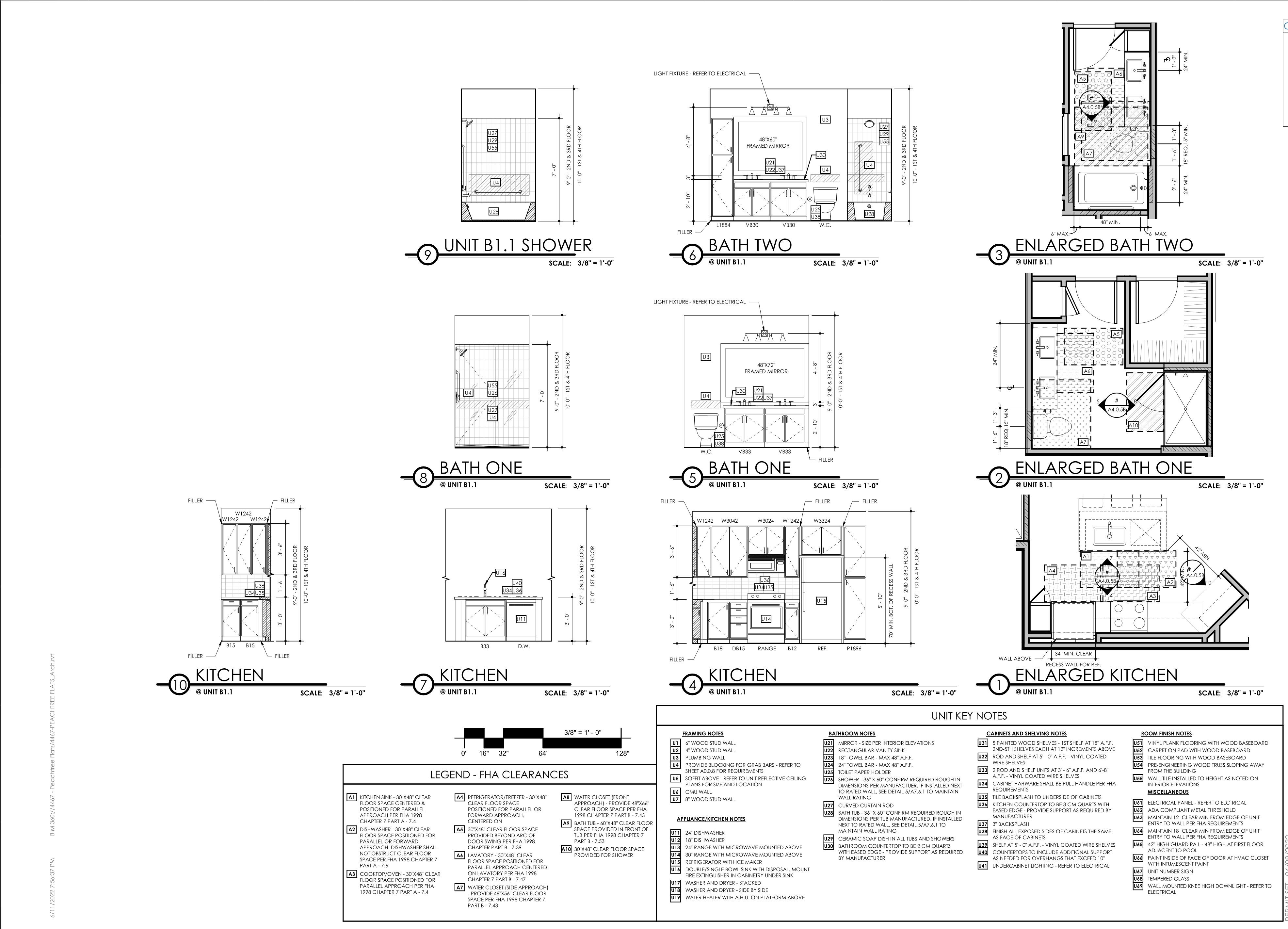
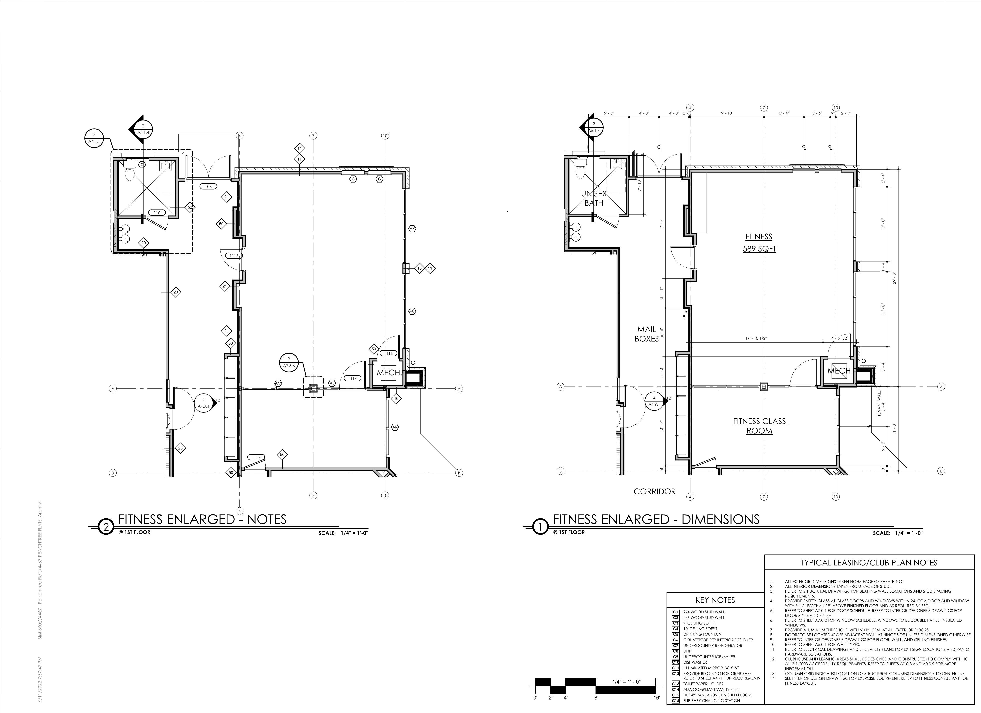
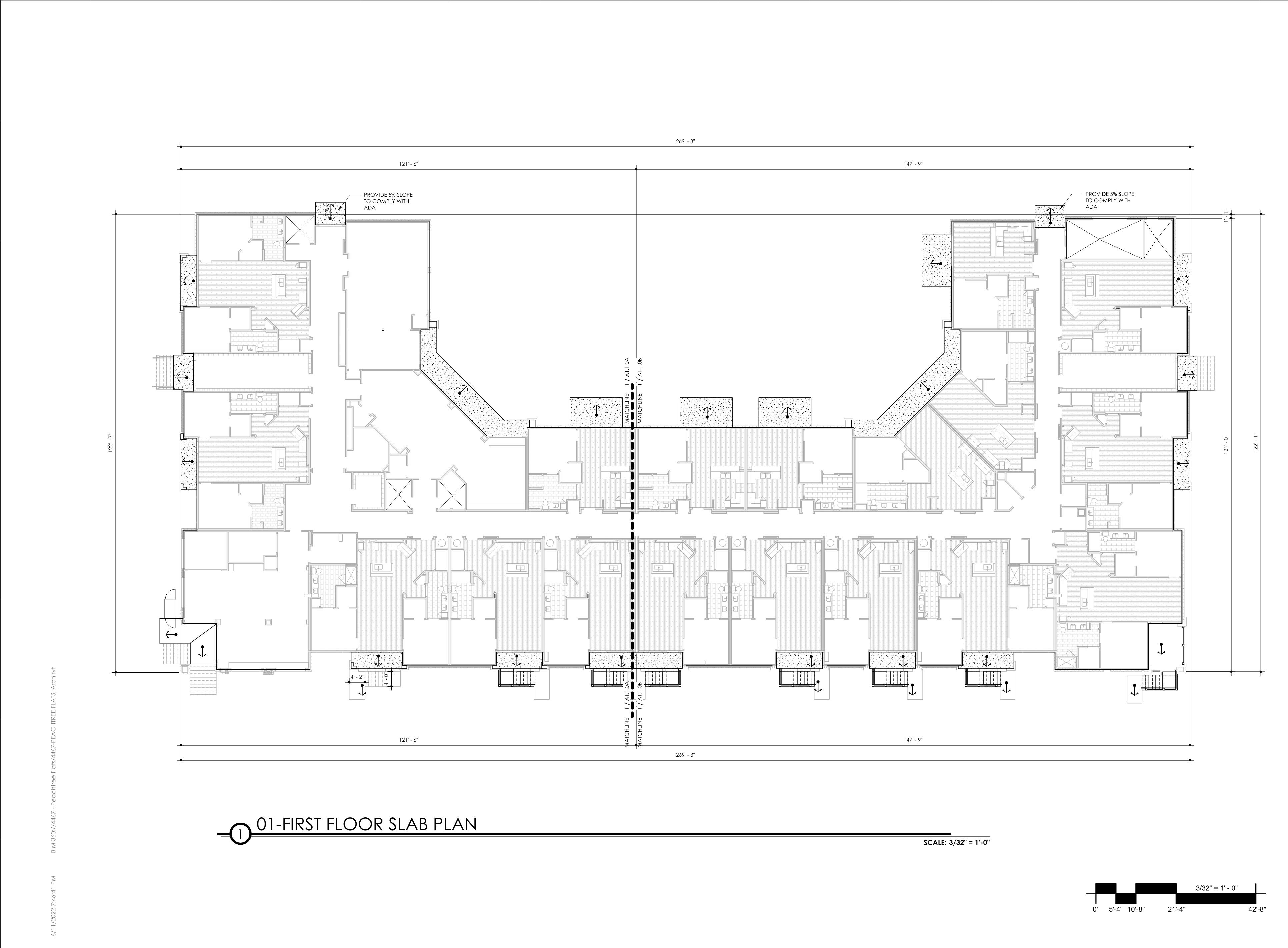
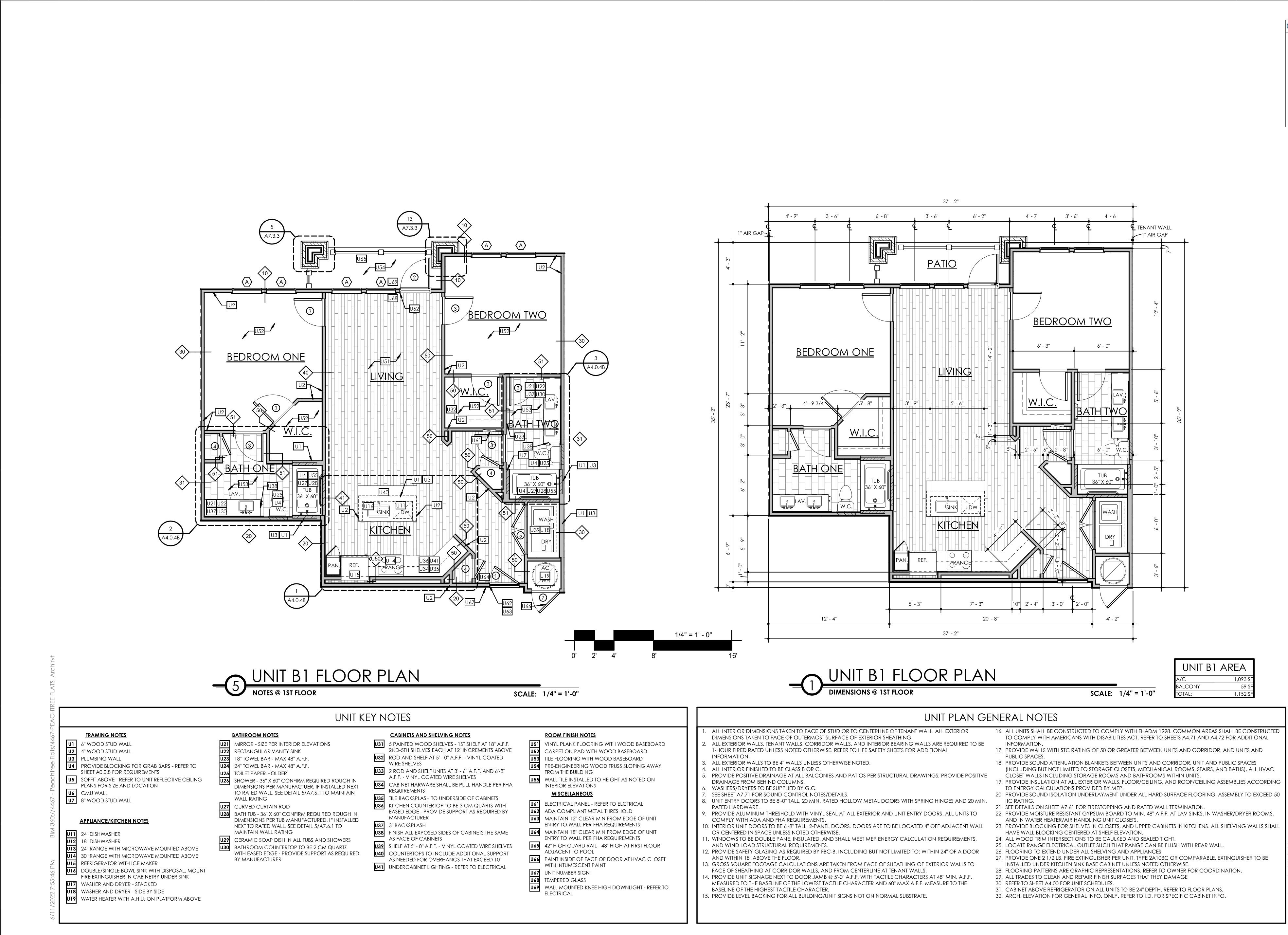
Multifamily
Townhouse Concept
3D PRINTING
Rendering Concepts
What is Architecture? – TAR 1120C – Javier Colon
Multifamily
- FOR
Charlan-Brocks-Architects
- DATE
7/20/2015